HILL HOUSE

HILL HOUSE

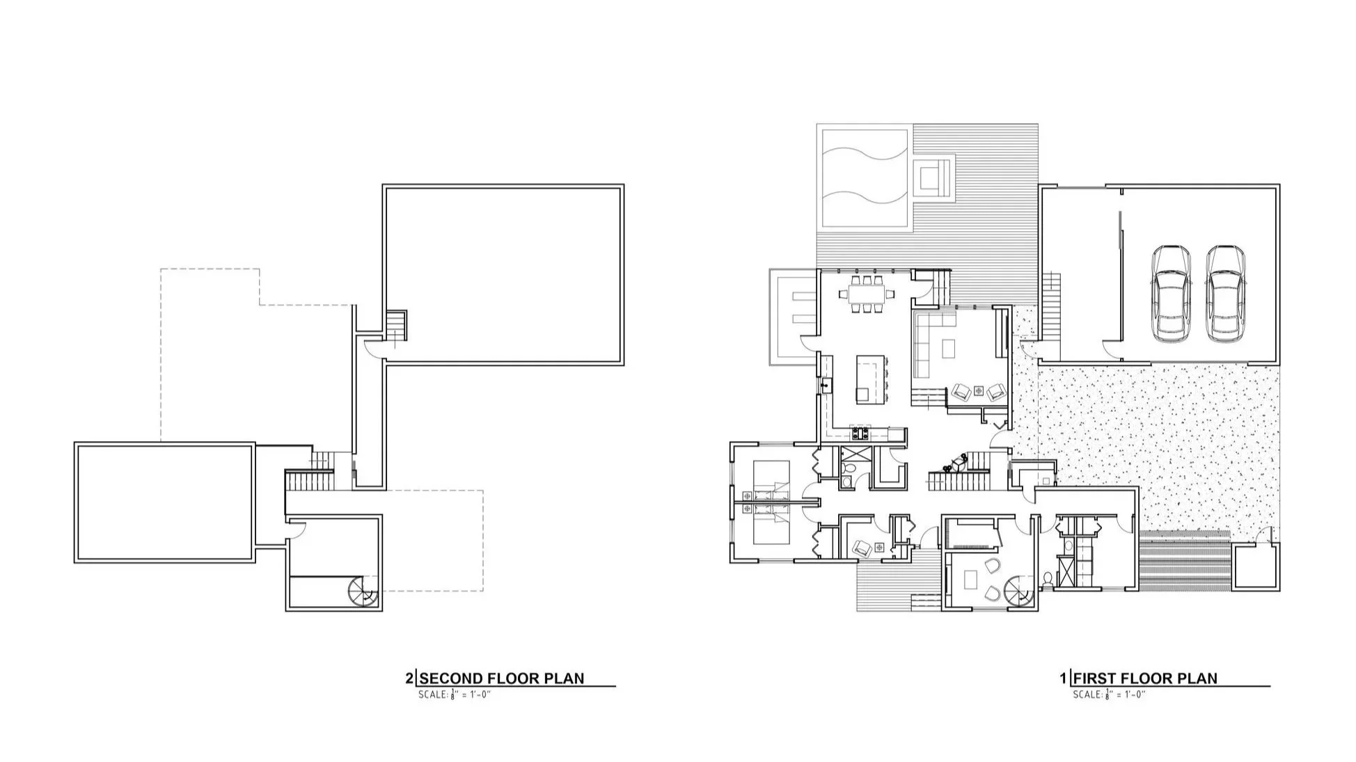
This project utilized the Complete Concept design package developed through multiple iterations exploring form, massing, and spatial organization. Exterior renderings and floor plans illustrate the evolution of the design and its integration of architectural expression with functional planning. The final proposal represents a refined and cohesive vision shaped by an iterative design process.

Process Documents

Previous
Previous

The Point Wellness Spa

Next
Next

Indiana Barndominium